致謝金陵厚愛!不負“紅盤”擔當 錦云臺線上開盤熱銷10億
臻心致遠,再呈當紅傳奇;
厚積薄發,共鳴樓市華章。
3月30日,在疫情的影響下,歷經等待與沉淀,南部新城主城作品錦云臺,在經歷首開售罄后,A-4、A-6幢線上重磅再加推,熱銷10億元!斐然成績的背后,是錦云臺對南京圈層人物生活品味深入研究,更是用心做好產品的不忘初衷。

致謝南京厚愛 錦云臺加推再度熱銷
在這個作品為王的時代,好的產品越來越擁有市場話語權。
值得注意的是,錦云臺本次開盤為南京首次公證云選房,此次機會來之不易。由于處在疫情防控的關鍵時期,經過多輪與防疫等相關部門的溝通,始終無法開展線下加推活動。之后,通過多方協調及溝通,與南京主管部門一起聯合首次搭建南京公證云選房系統,經過線下、線上幾輪培訓及公測,終于在2022年3月30日上午9:45準時線上開盤,線上開盤能取得如此佳績,足以論證在何種市場形勢下,項目的熱賣,都與地段、品牌價值以及產品的品質密不可分。購房者對項目的認可,才是熱銷的不二法門。
作為南部新城的人居封面著品,憑著實力央企品牌保利發展&新希望地產、不可復制的南部新城核中核區位優勢和備受市場認可的紅盤本色,錦云臺再掀南部新城購房熱潮,助力樓市“小陽春”。
在大力扶持“南部新城”的利好政策以及前期鋪墊蓄客火爆程度下,項目開盤即大火,早已不是懸念。而今加推大捷,不僅坐實未來潛力,也堅定了項目已然成為足以匹配尊崇身份的不二之選。
保利發展&新希望地產 雙強房企聯袂護航
品牌是一個項目強有力的保障,央企更是當下購房的“強心劑”。錦云臺項目,由央企保利發展護航,世界五百強新希望地產扛鼎,雙強品牌聚力運籌。
保利發展控股集團,長年穩居央企地產第一。業務遍布100多個城市,開發項目1000+。今年“三道紅線”新規下,保利無一踩線,是備受信賴的“綠檔”房企。保利發展深耕江蘇13年,以前瞻性的眼光與全球化的視野,打造了包括保利天悅、保利堂悅、保利香檳等眾多人居標桿。
新希望地產——中國房地產企業TOP40、世界500強企業,實力顯著。
在央企背書的加持下,入手錦云臺項目不僅是穩妥的不二選擇,跟隨巨擘的眼光,必將并肩城市價值騰飛的未來。
南部新城核中核 繁華配套匹配圈層生活
讓繁華與便捷交織,只為創造理想的人居模式。
錦云臺坐落南部新城主城,未來區域將涵蓋約20萬方商業版圖的國際商務區,被譽為華東文娛新地標的文娛時尚區,以及有著多元醫療的智慧健康區。此外,項目毗鄰世界級機場跑道公園,六大城市級地標匯聚,未來可隨心暢享國際化潮流生活。
在交通配套上,南部新城板塊匯聚地鐵3號線(運行中)、5號線(預計2024年通車)、6號線(預計2022年底建成)、10號線(規劃中)、16號線(規劃中),共5條地鐵線路匯聚,優質資源于此薈萃。
強勁實力 1.8低容積珍罕低密大宅
登峰入市,離不開其強大的產品力。
為了締造足以扛鼎城市封面的項目,錦云臺打造了南部新城乃至全市都至為珍罕的主城區約1.8低容積率,可享私密性、低密性及陽光普照的舒適性。12-18F低密大平層,以及約80%得房率,不僅增加人均公區占比,更延伸空間的寬闊感與尺度感。
盛放于都芯桃源秘境,錦云臺內擁百米景觀中軸,外接東風河景觀水岸、響水河水岸風光帶,美景肆意圍合。同時,私享以南京“云錦”為設計理念的度假式園林,奢配中央百米景觀中軸,締造休閑生活,以美景輝映時光。
全能王牌戶型 高配大牌及智能科技
匠筑一個時代的經典,于高處俯瞰世界。
錦云臺在用心打造居住環境的同時,潛心締造能與圈層人物相匹配的約143-189㎡精工戶型,盡享生活萬般精奢。在精裝配置上,錦云臺沿襲德系高標,攜手全球高定家居品牌,將精工理念融入生活。品牌智能家居系統,涵蓋中控系統、電動窗簾、新風、燈光控制、空調及地暖面板控制、環境檢測等,打造智能化的科技生活。

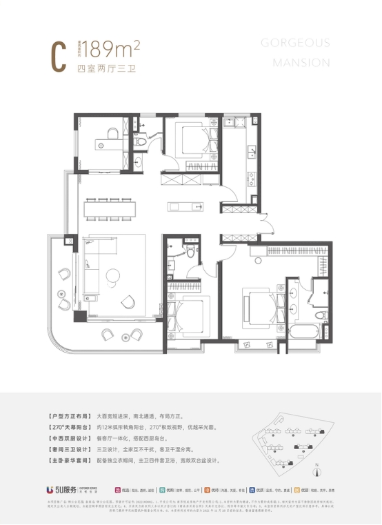
此次加推的約189㎡戶型,以寬闊的餐客廳格局、270°天幕陽臺、中西雙廚、四件套獨立主衛及雙套房設計等,充分延展軒闊的空間感與多樣的生活感,演繹人生進階的從容氣度。
約41.5㎡的橫廳里,一體化餐客廳相連了270°瞰景視野的景觀陽臺,不僅吸納更多和煦陽光,更可瞰機場跑道公園和響水河景觀帶,帶來前所未有的視覺盛宴。
獨立的“I型中廚+島臺西廚”中西雙廚設計,將西式餐點的精致同中式味道的溫情一一吸納,彰顯生活的品味。
南面主臥配備約2.4m開間無敵觀景大飄窗,約8.9㎡衛浴間、約8㎡步入式衣帽間自成一體,讓日常起居更加自在從容,呵護主人尊貴與私密。其中主衛涵蓋雙臺盆設計、馬桶、淋浴、浴缸、盥洗池四件套,從人性化到私密感,無處不滿足著主人對美好生活的品質之享。
而這僅是錦云臺約189㎡戶型,帶來的非凡體驗感。另外精心締造的約1439㎡、約186㎡戶型,同樣尊崇無比。
270°天幕轉角陽臺 你的視野與眾不同
l 約8.1m通長餐客廳
l 約15.5㎡、270°轉角天幕陽臺
l 中西雙廚設計,配備西廚島臺
l 三衛設計,干濕分離
l 主衛四件套衛浴及雙臺盆設計
l 主臥套房,配備約8㎡獨立衣帽間及衛浴四件套
l 寬闊四臥設計
l 臥室飄窗增加儲物功能

南向約16m五開間 舒享N+1向陽橫廳
l 約16m南向5大開間
l 約9.5m瞰景三陽臺
l 中西雙廚設計,配備西廚島臺
l N+1客廳,創變公區更多可能
l 主衛四件套衛浴及雙臺盆設計
l 主臥套房,配備獨立衣帽間
l 軒朗四臥設計
l 臥室飄窗增加儲物功能

南向約13m四開間 奢居豪華主臥套房
l 約7.8m通長餐客廳
l 約6.8m雙開間陽臺
l 人體工學U型廚房
l 公衛獨立盥洗區,三分離功能設計
l 主臥步入式衣帽間
l 主衛四件套衛浴及雙臺盆設計
l 臥室飄窗增加儲物功能
l 約13m南向四大開間

目前,南部新城跑道正核,A-4、A-6幢建面約143-189㎡低密度天幕藏品,熱勢搶藏中。4月傳奇再續,新品即將乘勢加推,敬請期待。具體購房事宜,請咨詢:025-8718 0666
- 免責聲明:本文內容與數據僅供參考,不構成投資建議。據此操作,風險自擔。
- 版權聲明:凡文章來源為“大眾證券報”的稿件,均為大眾證券報獨家版權所有,未經許可不得轉載或鏡像;授權轉載必須注明來源為“大眾證券報”。
- 廣告/合作熱線:025-86256149
- 舉報/服務熱線:025-86256144
